
物件番号
8657
福岡市中央区天神3丁目
43万9,208円/月
86.27m2
登録日:2026年4月21日 
天神!通りに面する1フロア1テナント!マッサージ・整骨院等向け居抜店舗!居抜110万!!
物件概要
| 所在地 | 福岡市中央区天神3丁目 | 構造・規模 | 鉄骨鉄筋コンクリート造 8階建て |
|---|---|---|---|
| 交通 | 地下鉄空港線 天神駅 徒歩4分 | 物件の階数 | 3階部分 |
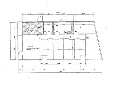
| 物件種別 | その他 | 物件の床面積 | 86.27m2(26.10坪) |
| 現況 | 入居中 | 駐車場 | 無し |
| 築年月 | 平成8年10月 | 引渡し時期 | 相談 |
| 設備 | エレベータ | 備考 | 現況優先。施術部屋×6・スタッフルーム・待合スペース。・一部譲渡除外品あり。 飲食不可。建物内競合業態不可。 ※業者様からの客付はご遠慮願います。 |
賃料・契約
| 賃料 | 43万9,208円/月 (税込) | 共益費・管理費 | 55,000円/月 |
|---|---|---|---|
| 敷金 | 6ヶ月 | 敷引 | - |
| 礼金 | - | 保証金 | - |
| その他費用(月額) | - | 居抜料 | 110万円 |
| 契約形態・期間 | 5年(定期借家) | 保険等(要加入) | 火災保険加入・保証会社加入 |
※諸条件により、掲示している賃貸条件に相違が出る場合がございますのでご了承ください。※内覧ご希望の場合は、希望日前日までにご連絡ください。お問合わせ当日のご案内は、お断りする場合がございますので予めご了承下さい。












福岡の居抜き物件をお探しなら
「居抜き物件.com」
福岡の居抜き物件をお探しなら、「居抜き物件.com」にお任せください。カフェや喫茶店、レストランや居酒屋、バーや美容室など、様々な用途の居抜き店舗情報を豊富に扱っておりますので、店舗探しが初めての方でも安心してご希望の物件を検索できます。 お問い合わせからご契約まで、弊社の宅地建物取引主任者が責任をもってサポートさせていただきますので安心してご利用ください。
運営:株式会社ソリューション